MARINA DRIVE RESIDENCE


Location:
Hope Ranch, California
Project Type: Residential
Size: 10,143 SF
Year: 2017
Service: Architecture & Interiors

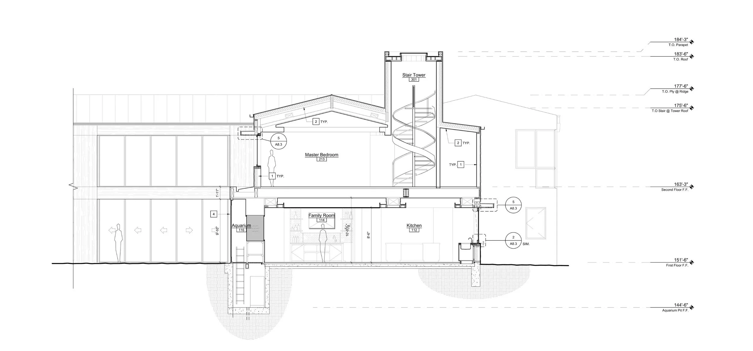
Set against one of Santa Barbara's most desirable ocean-front views, this contemporary residence features expansive glass walls framed by a clean, white façade and hardwood accent paneling. Each unique living space is showcased through the glass, exuding calm sophistication and meticulous attention to detail. The home includes a main living room, dining room, family kitchen, home theater, Pilates/yoga studio, bar, and an auxiliary kitchen for large-scale entertaining. Upstairs, the private office and three guest bedrooms, each with its own bathroom, offer comfort and privacy. The master bedroom suite includes a private balcony, meditation room with a bar and daybed, and access to a private hot tub atop the tower. Equipped with the latest smart home technology, the residence features an automated Lutron lighting system, fully-loaded entertainment centers, heated entryways, a remote-controlled fireplace, and custom in-wall saltwater aquariums. The home opens to a stunning outdoor terrace with a pool, cliff-side seating area, and fire pit, completing this extraordinary residence.

Modern coastal home with large glass windows, palm trees, and a grand entrance, designed for luxury living with ocean views.
Backyard view of a luxury modern home with a fire pit and pool.
Modern architectural facade with glass accents and symmetrical lines, featuring a grand entryway, flanked by palm trees and reflecting pools, offering a seamless blend of luxury and nature.
Modern interior hallway with wood and glass staircase, recessed lighting, and colorful wall art, creating a clean and minimalist design.
A serene oceanfront pool and patio area at a modern coastal estate
Modern floating staircase with curved steel and wooden steps.
Ocean view through olive trees with a fire pit in a coastal landscape design at a luxury residence.
Modern luxury home with illuminated pool and large glass windows reflecting a contemporary architectural design.
Modern firepit seating area overlooking the ocean with sleek minimalist design in this coastal residence.
Architectural section drawing showing details of a modern coastal residence design, featuring a spiral staircase tower, master bedroom, aquarium pit, and kitchen layout.

VIA BENDITA

EXPLORE MORE WORK

EDGECLIFF RESIDENCE

BIRNAM WOOD

CAMPANIL HILL RESIDENCE